Home / Produkto / Sueding machine / Vertical pinagsama sueding machine MM-model

Vertical pinagsama sueding machine MM-model

Makipag -ugnay sa amin Vertical pinagsama sueding machine MM-model
Mga Tampok ng Mga Produkto
  • Maraming nalalaman nakasasakit na mga kumbinasyon:

    Katugma sa papel de liha, carbon fiber, at ceramic fiber, na nag -aalok ng nababaluktot na nakasasakit na mga pagsasaayos para sa magkakaibang mga pangangailangan sa sanding.

  • Compact Design:

    Ang istraktura ng pag-save ng espasyo na may isang maliit na bakas ng paa, mainam para sa mahusay na mga layout ng workshop.

  • Mataas na bilis ng operasyon:

    Sinusuportahan ang mahusay na single- at dobleng panig na sanding, pagpapahusay ng pagiging produktibo.

  • Malawak na application:

    Angkop para sa pag-sanding ng koton, pinaghalong mga pinagtagpi na tela, niniting na tela, mga tela ng jacquard, at iba pang mga materyales, kabilang ang dobleng panig na sanding ng polyester, naylon, spandex, atbp.

Tumatakbo na makina sa site
Panimula ng pagganap
Higit pang mga variable na pinagsamang istilo ng sanding:

Sinusuportahan ang pinagsamang paggamit ng maraming mga abrasives (papel de liha/carbon fiber/ceramic fiber), pagyamanin ang mga aplikasyon ng kagamitan at natapos na mga epekto ng peaching ng produkto.

Matatag na kontrol sa pag -igting at pag -ilid ng paggalaw:

Tiyakin ang pare -pareho at matatag na mga epekto ng peaching sa kaliwa, gitna at kanang panig ng tela.

Mas makatuwirang istraktura ng kagamitan:

Maliit na bakas ng paa.

Maramihang mga kumbinasyon ng linkage:

Sinusuportahan ang single- at dobleng panig na sanding, at maaaring magamit ng mga ultra-high-speed grinding rollers.

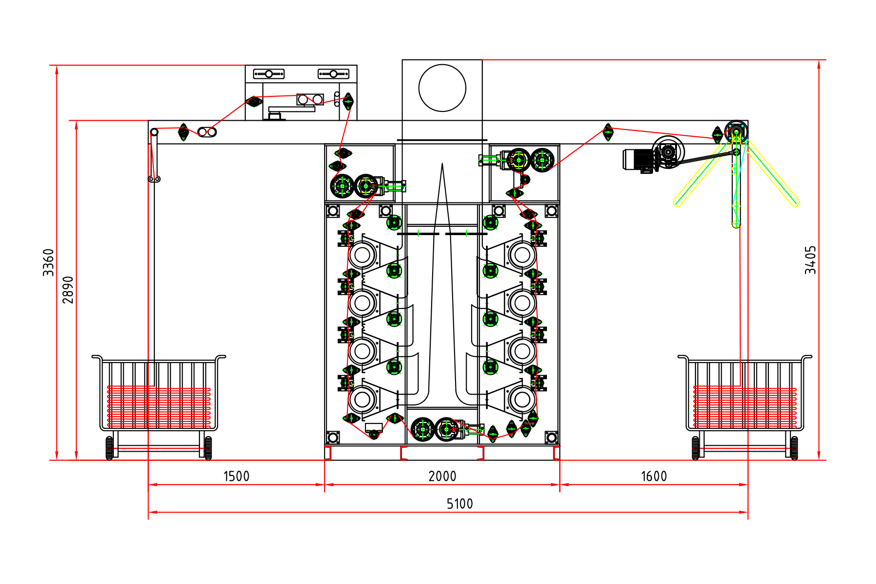
Mga teknikal na parameter

Pangalan

Mga detalye

Lapad ng pagtatrabaho

1800 ~ 3600mm

Lapad ng max na tela

1600 ~ 3400mm

Bilis ng mekanikal

5-60m/s

Sanding roller diameter

Φ215mm φ240mm (opsyonal)

Diameter ng carbon fiber roller

Φ260mm $

Tsart ng daloy ng trabaho
  • MM10S vertical double-side sueding machine
  • MM8S vertical sueding machine
  • Mm8c (8 8) Vertical pinagsama sueding machine
  • LMH804 (8 8) Vertical pinagsama sueding machine
  • M5S vertical sueding machine
  • Mm8s vertical leather sueding machine $
Tungkol sa amin
Jiangsu Huayi Makinarya Co, Ltd.
Sa loob ng mahigit dalawang dekada, ang Huayi ay lumago mula sa simpleng simula patungo sa isang matibay na negosyo na may mahigit 50 milyong RMB na fixed assets. Ang aming modernong pabrika ay sumasaklaw sa mahigit 10,000 metro kuwadrado, na kinukumpleto ng mahigit 1,000 metro kuwadradong espasyo para sa opisina. Simula sa iisang uri ng sueding machine, itinaguyod namin ang diwa ng inobasyon, patuloy na pinapalawak ang aming mga alok na produkto. Ngayon, nakapagtatag kami ng komprehensibong portfolio ng mahigit 30 modelo ng sueding machine, kabilang ang vertical, horizontal, planetary, dry, wet, at CNC solutions, na tumpak na tumutugon sa mga pangangailangan ng iba't ibang tela tulad ng cotton, polyester, woven, knitted, at maging ang microfiber, na nag-aalok ng mga customized na sueding treatment. Sa loob ng dalawampung taon ng dedikadong pagsisikap, nalampasan namin ang maraming teknikal na hamon sa sueding at naging mahusay sa pag-optimize at pag-upgrade ng aming mga produkto, itinatag ang Huayi sueding machine bilang isang bagong benchmark sa industriya at nakakuha ng malawakang pagkilala at papuri. Ang mga bunga ng karunungan at inobasyon ang nagtutulak sa aming pag-unlad, gaya ng pinatutunayan ng aming akumulasyon ng 31 patente ng imbensyon at 30 patente ng utility model, isang patunay ng aming teknikal na kahusayan. Mula noong 2016, ang aming kumpanya ay pinarangalan bilang isang "Pambansang High-tech Enterprise" sa loob ng magkakasunod na taon, na nagpapakita ng aming natatanging mga tagumpay sa teknolohikal na inobasyon. Sa hinaharap, ang Huayi ay magpapatuloy nang may mas masigasig na pakikipagtulungan sa mga bagong kagamitan sa pagtatapos tulad ng Air Softening Machine, Steam Flow Washing Machine, at Continuous Tumble Dryer, upang sama-samang lumikha ng isang mas makinang na kinabukasan. Patuloy naming susuriin nang malalim ang larangan ng mga kagamitan sa pagtatapos, magsisikap sa susunod na dalawampung taon nang may kahusayan at determinasyon.
Sertipiko ng karangalan
  • Patent Certificate
  • Patent Certificate
  • Patent Certificate
  • Patent Certificate
  • Patent Certificate
  • Patent Certificate
  • Patent Certificate
  • Patent Certificate
Balita
Feedback ng mensahe
Kaalaman sa industriya

Bakit ang "maramihang mga nakasasakit na kumbinasyon" ay ginagawang mas nababaluktot ang vertical na sueding machine MM-Model?

Sa modernong pagproseso ng tela, ang mga hinihingi para sa suede na natapos sa iba't ibang mga tela ay lubos na magkakaibang. Ito ay totoo lalo na sa mga segment ng merkado tulad ng mga tela sa bahay, kasuotan, at mga tela na may pagganap. Ang "Suede Style" at "Surface Feel" ay madalas na matukoy ang kalidad ng isang produkto at idinagdag na halaga. Ang Vertical pinagsama sueding machine MM-model tinutugunan ang kalakaran na ito sa mga makabagong teknolohiya. Sa pamamagitan ng pagsuporta sa maraming mga nakasasakit na kumbinasyon, makabuluhang pinapahusay nito ang kakayahang umangkop at kakayahang umangkop sa merkado.

Ang tatlong abrasives bawat isa ay may sariling mga pakinabang, na sumasaklaw sa isang malawak na hanay ng mga uri ng tela:

Ang papel na papel de liha ay angkop para sa pangunahing sanding ng mga pangkalahatang tela (tulad ng maginoo na koton at polyester). Ang malakas na puwersa ng paggiling at mabilis na pagsisimula ng pagkilos ay nagbibigay-daan sa mabilis na paglikha ng isang pangunahing texture ng suede, na ginagawa itong isang mainam na pagpipilian para sa mataas na dami, pangunahing pagproseso.

Ang carbon fiber roller, na may mataas na lambot at pagkakapareho nito, ay partikular na angkop para sa pinong pag-sanding ng kalagitnaan ng mga high-end na niniting na tela o pinaghalong tela. Matapos ang pagproseso, ang ibabaw ng tela ay may isang mas natural at makinis na pakiramdam, na ginagawa itong malawak na ginagamit sa mga produkto na nangangailangan ng isang pinahusay na pakiramdam ng tactile, tulad ng matalik na damit at mga kasangkapan sa bahay.

Ang ceramic fiber roller ay ipinagmamalaki ang pambihirang tigas at pinong kontrol, na ginagawang angkop para sa pag-apply ng isang "high-end polishing" -style velvet na paggamot sa high-density, premium na tela tulad ng corduroy at lana na tela, na lumilikha ng isang natatanging, premium na peach-skin na epekto na nakakatugon sa mga kinakailangan sa pagproseso ng high-end na damit at luho na kalakal.

Ang dinamikong kumbinasyon at paglipat ay nagpapabuti sa kahusayan sa pagproseso:

Ang vertical na pinagsama na sueding machine MM-Model ay nakasasakit na kumbinasyon ay hindi lamang sumusuporta sa nakapirming solong-materyal na operasyon ngunit din ang nababaluktot na mga kumbinasyon tulad ng multi-roller linkage at sunud-sunod na sanding. Ang mga nakasasakit na uri ay maaaring mabilis na lumipat sa panahon ng paggawa ng batch o mga operasyon ng halo-halong produkto, makabuluhang binabawasan ang mga gastos sa pagsasaayos ng makina at oras ng manu-manong operasyon. Mahalaga ito lalo na kapag ang paghawak ng maliit na batch, magkakaibang mga order, epektibong pagpapabuti ng output ng kagamitan sa bawat oras ng yunit.

Ang makabagong pagsasama na nagmula sa dalawang dekada ng akumulasyon ng teknolohikal:

Ang nababaluktot na modular na disenyo na ito ay sinusuportahan ng dalawang dekada ng akumulasyon ng teknolohikal at karanasan sa industriya ng Jiangsu Huayi Machinery Co, Ltd mula sa control ng temperatura, koordinasyon ng presyon ng roll, at pagsasaayos ng pag -igting sa proseso ng sanding hanggang sa naka -synchronize na drive at awtomatikong mga sistema para sa operasyon ng kagamitan, ang malalim na kadalubhasaan sa pagmamanupaktura ng kumpanya ay maliwanag. Pinapayagan nito ang vertical na pinagsamang sueding machine MM-Model upang matugunan ang parehong tradisyonal na mga pangangailangan sa sanding ng tela at mga high-end na na-customize na mga order, na ginagawa itong isang platform ng kagamitan sa sanding na nagbabalanse ng kakayahang magamit at kadalubhasaan.

Paano mapapabuti ang matatag na pag -igting at pag -ilid ng kontrol ng paggalaw?

Sa pagproseso ng high-end na sanding, ang pagkakapare-pareho ng produkto ay isang pangunahing pag-aalala sa customer. Ang vertical na pinagsamang sueding machine MM-model ay gumagamit ng isang tumpak na sistema ng control control at isang pag-ilid na mekanismo ng pag-oscillation upang pabagu-bago na kontrolin ang estado ng pagpapatakbo ng tela, na makabuluhang pagpapabuti ng pagkakapare-pareho ng sanding at ani ng produkto.

Intelligent Tension Control System: Sa panahon ng proseso ng sanding, ang mga pagkakaiba -iba sa istraktura ng tela at timbang ay madalas na humantong sa pagbabagu -bago ng pag -igting sa pagitan ng iba't ibang mga uri ng tela (tulad ng mga kahabaan ng knits at mabibigat na timpla), nakakaapekto sa kalidad ng proseso. Ang vertical na pinagsamang sueding machine MM-model ay nilagyan ng isang advanced na sistema ng control control. Gamit ang isang built-in na sensor ng pag-igting, sinusubaybayan ng system ang pag-igting ng tela sa real time at nagbibigay ng agarang puna sa pangunahing sistema ng kontrol, tinitiyak ang mabilis na pagtugon at tumpak na pagsasaayos. Awtomatikong inaayos ng system ang gabay ng tela o braso ng pag -igting upang mapanatili ang perpektong saklaw ng pag -igting ng tela, pag -iwas sa pag -uunat ng pagpapapangit na sanhi ng labis na pag -igting o mga wrinkles at maluwag na lugar na sanhi ng hindi sapat na pag -igting. Ang pagpapaandar na ito ay epektibong nagpapabuti sa pagkakapareho ng sanding at pagtatapos ng ibabaw, at isang pangunahing teknikal na suporta para sa pagtiyak ng mataas na kalidad na mga resulta ng sanding.

Transverse Oscillation Control System: Ang pagkakapareho ng pag -sanding ay nakasalalay hindi lamang sa katatagan ng paayon na feed ng tela kundi pati na rin sa katumpakan ng transverse oscillation ng roller sa buong tela. Ang vertical na pinagsamang sueding machine MM-model ay nilagyan ng isang mataas na pagganap, elektronikong kinokontrol na transverse oscillation system, na nagpapagana ng tumpak na kontrol ng anggulo ng oscillation at dalas ng roller. Sinusuportahan ng system ang pagsasaayos ng multi-anggulo, na nagpapahintulot sa nababaluktot na kaliwa at kanang saklaw ng pag-oscillation batay sa lapad ng tela, tinitiyak ang pare-pareho na mga resulta ng napping sa mga gilid, gitna, at panig. Bukod dito, ipinagmamalaki ng system ang mataas na dalas na dynamic na tugon, awtomatikong inaayos ang dalas ng pag-oscillation batay sa bilis ng real-time na tela upang matugunan ang mga kinakailangan sa sanding sa iba't ibang bilis ng produksyon. Ang tuluy -tuloy at pantay na transverse na paggalaw ay epektibong pinipigilan ang roller mula sa natitira sa isang nakapirming lugar para sa pinalawig na panahon, na pumipigil sa naisalokal na "lumiwanag," mottling, o mga marka ng pagsusuot, tinitiyak ang isang maayos, malambot, at pare -pareho na ibabaw sa pangkalahatan.

Pagkakapare -pareho ng proseso: Salamat sa Jiangsu Huayi Machinery Co, Ltd's malalim na pag-optimize ng proseso ng muling paggawa ng parameter at katatagan ng pagpapatakbo sa panahon ng pag-unlad ng kagamitan, ang vertical na pinagsamang sueding machine MM-Model ay may kakayahang mapanatili ang lubos na pare-pareho ang mga resulta ng sanding sa maraming mga paglilipat at mga batch. Sa pagsisimula, ang makina ay mabilis na naabot ang set ng pag -igting at ritmo ng swing, tinanggal ang pangangailangan para sa mahabang pagsasaayos at mga pagsubok sa tela. Ito ay makabuluhang paikliin ang pag -setup ng pag -setup ng makina at nagpapabuti sa kahusayan ng produksyon. Kahit na sa mga pag-ikot ng operator, ang mga pagbabago sa uri ng tela, o mga pagbabago sa order, ang vertical na pinagsamang sueding machine MM-Model ay tumpak na nagpapanatili ng nais na lalim ng sanding at pagkakapare-pareho ng ibabaw, na makabuluhang binabawasan ang mga pagkakaiba-iba ng proseso na sanhi ng interbensyon ng tao. Bukod dito, sinusuportahan ng makina ang pre-setting at mabilis na paglipat ng maraming mga parameter ng proseso, na naaangkop na tumutugon sa magkakaibang mga kinakailangan sa pagkakasunud-sunod at pagkamit ng tunay na mahusay at matatag na nababaluktot na produksiyon.

Ang isang nakapangangatwiran na disenyo ng istruktura at kumbinasyon ng multi-link ay nagpapaganda ng kakayahang umangkop at kahusayan.

Ang pangunahing disenyo ng vertical na pinagsamang sueding machine MM-model ay ang mga teknikal na pananaw at tumpak na pag-unawa sa mga pangangailangan ng customer na naipon ng Jiangsu Huayi Makinarya Co, Ltd sa pamamagitan ng pangmatagalang pangako sa paggawa ng kagamitan sa tela. Nagtatampok ang makina na ito ng isang modular, compact layout, na makabuluhang binabawasan ang pangkalahatang bakas ng paa nito habang pinapanatili ang isang buong saklaw ng mga functional na pagsasaayos. Ginagawa nitong partikular na angkop para sa mga workshop sa produksyon na may masikip na mga puwang o mga nangangailangan ng mga layout ng kagamitan na may mataas na density, na nag-aalok ng higit na kakayahang umangkop para sa pag-optimize ng mga layout ng linya ng produksyon.

Kahit na mas makabagong, ang vertical na pinagsama na sueding machine MM-model ay nagsasama ng isang mekanismo ng multi-link, na nagpapagana ng coordinated na operasyon ng iba't ibang mga module ng proseso ng sanding. Ang mga gumagamit ay maaaring madaling i-configure ang single-sided sanding, double-sided sanding modules, at ultra-high-speed sanding rollers, paglipat sa pagitan ng mga kumbinasyon na ito batay sa uri ng tela, uri ng order, at mga kinakailangan sa kapasidad ng produksyon:

Single-sided sanding mode: Angkop para sa magaan na tela o tela na hindi nangangailangan ng dobleng panig na sanding, tulad ng tag-init sa tag-init o ilang mga linings ng damit. Binabawasan nito ang pagkonsumo ng enerhiya at hindi kinakailangang pagkawala ng tela.

Double-sided Sanding Mode: Nagbibigay ng lubos na pare-pareho ang pagproseso para sa mga medium-heavy na tela na nangangailangan ng parehong harap at likod na sanding, tulad ng mga tela sa bahay ng taglamig, flannel, at brushed na tela, na epektibong pinapahusay ang pangkalahatang texture ng tela.

Ultra-high-speed Sanding Roller Configuration: Idinisenyo para sa mataas na dami, mabilis na paghahatid ng mga pabrika, ang pagsasaayos na ito ay nagpapabuti sa kapasidad ng pagproseso ng makina sa bawat oras ng yunit at partikular na angkop para sa sentralisadong pagproseso ng mga malalaking dami ng mga order.

Ang modular na disenyo na ito ay hindi lamang nagpapalawak ng saklaw ng application ng kagamitan ngunit makabuluhang nagpapabuti sa kakayahang umangkop at kahusayan ng produksyon. Ang mga kumpanya ay maaaring maiayos ang mga pagsasaayos ng kagamitan batay sa mga plano sa paggawa, tinanggal ang pangangailangan para sa madalas na mga kapalit ng makina at makabuluhang binabawasan ang mga gastos sa oras at paglipat. Ang konsepto na ito ay nagmula sa malalim na pananaliksik ng makinarya ng Huayi sa mga hamon sa totoong mundo na kinakaharap ng mga pabrika ng tela ng iba't ibang laki sa harap ng "mabilis na tugon, mataas na pagkakaiba-iba, maliit na batch" na takbo. Sa pamamagitan ng pagbabago sa istruktura, nakamit ng Huayi Machinery ang isang makabuluhang pagpapabuti sa kakayahang umangkop sa kagamitan, na ginagawa ang vertical na pinagsamang sueding machine MM-Model isang mahalagang tool para sa pag-upgrade ng tela ng sanding automation ngayon.